imgmap
Theater
Classroom
U shape
Boardroom
Cocktail
Banquet
Cabaret
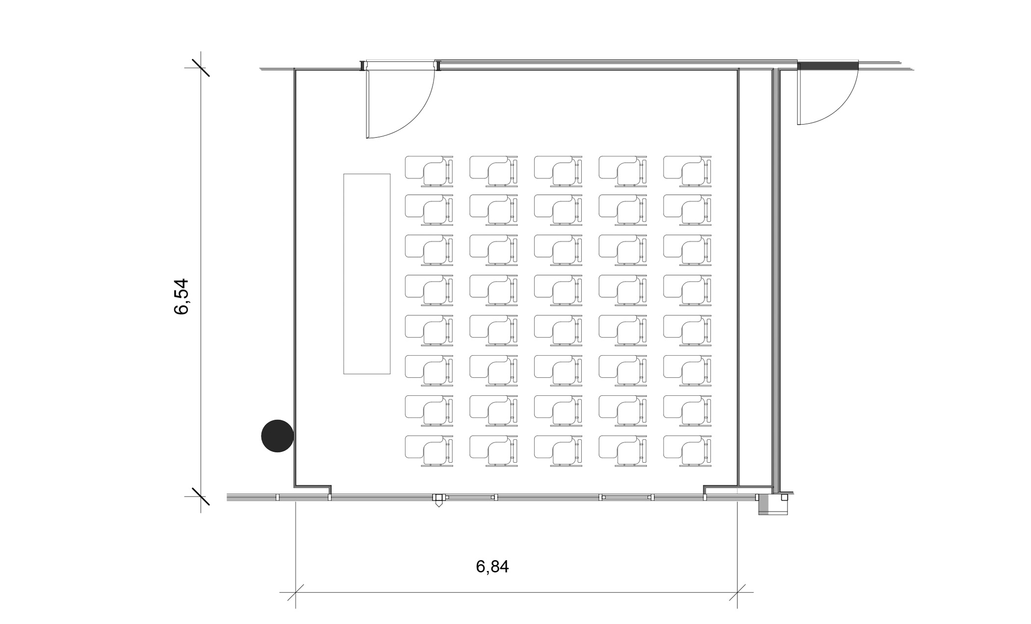
Room 2.13 Surface43 m2 Theater 39 Classroom 12 U shape 17 Boardroom 22 Cocktail 30 Banquet - Cabaret -